🏠 Abitazione in Villorba Proc. 535/2021, lotto 1 Trib. Treviso
📍 Villorba, Via guizze 1 (Treviso)
- Data asta: 03/03/2026
- Offerta minima: €199.500,00
- Stato occupazione: Occupato senza titolo
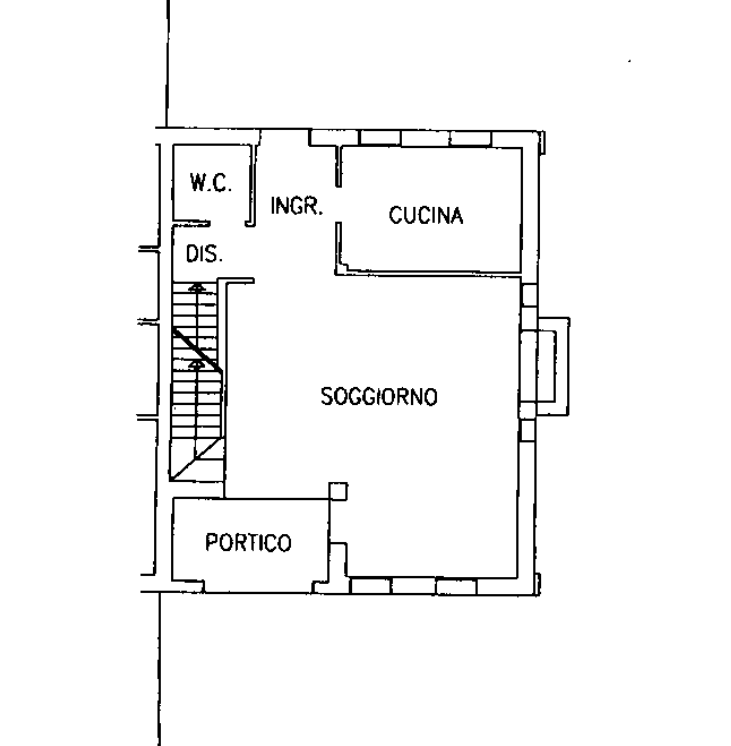
- 🏗️ Planimetrie
- 📷 Galleria immagini
Descrizione dei beni:

Simulazione Costi Acquisto all'Asta
Contenuto comprimibile
Posso partecipare all’asta anche se non ho esperienza?
Assolutamente sì. Lo Studio Immobiliare Perissinotto segue sia privati che investitori alla prima esperienza. Ti assistiamo in ogni fase: dalla valutazione dell’immobile alla presentazione dell’offerta, fino al post-aggiudicazione. Non è necessario avere competenze tecniche o legali: pensiamo a tutto noi.
È possibile visitare l’immobile prima dell’asta?
Sì, in quasi tutti i casi è possibile effettuare un sopralluogo, tramite richiesta al custode giudiziario. Ci occupiamo noi di gestire la pratica, coordinare l’appuntamento e accompagnarti.
Posso fare un mutuo per acquistare in asta?
Sì, è possibile. Alcuni istituti bancari concedono mutui specifici per acquisti all’asta. Collaboriamo con consulenti esperti in credito immobiliare e possiamo aiutarti a ottenere una pre-delibera e ad allineare le tempistiche del mutuo con quelle dell’asta, garantendoti la massima sicurezza operativa.
Ci sono rischi nascosti o debiti sull’immobile?
È possibile, e per questo motivo effettuiamo un’analisi completa dell’immobile e della procedura: verifichiamo la presenza di abusi edilizi, debiti condominiali, occupazioni in corso o altre criticità. Ti forniamo una relazione scritta chiara, in modo che tu possa decidere con piena consapevolezza.
- Scegliendo una selezione si ottiene un aggiornamento completo della pagina.
- Si apre in una nuova finestra.